Superbe appartement neuf, grande surface, vue lac et balcon généreux Superbe appartement neuf, grande surface, vue lac et balcon généreux Superbe appartement neuf, grande surface, vue lac et balcon généreux Superbe appartement neuf, grande surface, vue lac et balcon généreux Superbe appartement neuf, grande surface, vue lac et balcon généreux Superbe appartement neuf, grande surface, vue lac et balcon généreux

Superbe appartement neuf, grande surface, vue lac et balcon généreux

1071 Chexbres, Vaud
  • Appartement
  • 128 m2
    Surface habitable
  • 4.5
    Pièces
  • 2
    Salles de bain

Description

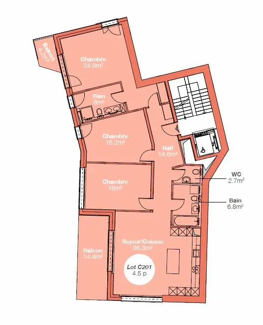
Appartement 4.5 pièces lumineux de 138 m², avec vue dégagée et prestations premium. Terrasse de 18 m²,
Cadre idéal pour résidence principale ou secondaire.

Idéal pour une famille recherchant confort et luminosité au cœur du Lavaux.
2 places de parc souterrain en sus.

Au cœur du Lavaux, classé au patrimoine mondial de l’UNESCO, découvrez une promotion exclusive de 14 appartements haut de gamme, répartis sur 3 bâtiments contemporains, offrant une vue spectaculaire sur le lac Léman et les Alpes.

 Déjà 6 appartements vendus + 1 réservé
 Plus que 7 lots disponibles – opportunité rare

LES ATOUTS

  • Appartements de 3.5 à 6.5 pièces (de 101 à 270 m²)
  • Balcons ou terrasses avec vue panoramique
  • Grandes baies vitrées, luminosité exceptionnelle
  • Finitions haut de gamme (cuisines V-ZUG, parquet, matériaux premium)
  • Chauffage au sol par géothermie + panneaux solaires
  • Triple vitrage, isolation performante
  • Ascenseur, ventilation moderne, fibre optique
     
    Stationnement
  • 2 places de parking souterrain par appartement
     CHF 40’000.– / la place (en sus)

SITUATION IDÉALE – CHEXBRES (Lavaux)

  •  Environnement calme entre vignes, lac et montagnes
  •  Gare de Chexbres à proximité (liaisons rapides)
  • Vevey à 10 min / Lausanne à ~20 min
  •  Commerces à proximité (Coop, Migros Vevey, etc.)
  • Écoles :
    • École enfantine et primaire à Chexbres
    • Établissements secondaires accessibles rapidement (Vevey / région)

UN CADRE DE VIE UNIQUE
Entre nature, vignobles et panorama exceptionnel, ce projet offre une qualité de vie rare en Suisse romande, alliant tranquillité, accessibilité et standing.
 
Demandez le dossier complet et contactez M. Stéphane Séchaud 076/576.73.15 pour plus d’informations sur cette promotion d’exception.

Détails du bien

  • Nombre de pièces 4.5
  • Nombre de chambres 3
  • Nombre de salles de bains 2
  • Nombre de WC 1
  • Parking intérieurs 2
  • Année de construction 2027
  • Surface habitable 128 m2
  • Surface pondérée 138 m2

Équipements

  • Adapté aux enfants
  • Ascenseur
  • Vue dégagée
  • Accessible en fauteuil roulant

Emplacement

1071 Chexbres, Vaud
Code postal